Casa en Centenario Venta-Alquiler
Venta
Gobernador Olascoaga al 700
Características Principales
Casa
1 Dormitorio(s)
1 Baño(s)
2 Ambiente(s)
61.75 m² (cubierta)
2 años antigüedad
Descripción
Hermosa Casa en Venta - Loteo Mutual BPN - Centenario!
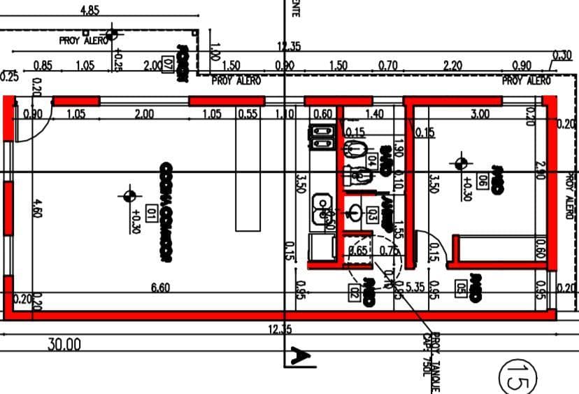
La propiedad se encuentra en un lote de 300 m2 y su construccion es de 61 m2.
Living comedor, cocina, toilette, baño completo, 1 dormitorio, entrada vehicular.
Cámaras de seguridad, alarma y riego automático.
Bobadilla María Laura Martillero y Corredor Público M.P. N° 758
Comodidades y Servicios
Agua Corriente
Electricidad
Jardín
Living comedor
Patio
Alarma
Riego automático
Calefacción individual
Venta
90.000USD

Laura B.
Profesional
Información de la Inmobiliaria:
María Laura Bobadilla
Finca Laguna Blanca
Tel: +54 299 4213223




















